少量危険物庫ドアタイプ FPIDシリーズ屋内型
FPI-D1型・FPI-D2型
指定数量の倍数1/5倍以上1倍未満
商品説明
指定数量の倍数1/5倍以上1倍未満対応
既存の施設内(クリーンルーム・研究所・工場等)に設置可能。危険物の分散対策の必需品。
火災予防条例適合タイプ
ノックダウン式(組立式)屋内専用の少量危険物庫で、特殊引火物、アルコール類、第一石油類、第二石油類の貯蔵が多い。
1坪、2坪の2タイプがあり、それぞれ危険物を貯蔵・取り扱う際に使用する容器(ガロン瓶、ペール缶、一斗缶、携行缶、灯油缶等)により選ばれる傾向がある。
FPI型につきましては、現地確認必須となります。(弊社から現場確認へお伺いいたします。)現場確認後の最終図面作成、正式お見積りとなります。
設置条件
-
建物内、フロアごとに複数棟の設置事例がございます。自治体ごとで見解が異なりますので、予め管轄消防にご確認ください。
例)建物3Fに2棟(A危険物庫0.4倍、B危険物庫0.3倍)設置可だが指定数量合計は1倍未満とすること。
例)建物の耐火構造有無、防火区画有無問わず、建物内に1棟だけは設置可。 - 搬入の際入口は、最低高さが2,050mm、巾が750mm必要です。
- 1次側のダクト工事が別途必要です。お近くの空調業者様などへご相談ください。
- 1次側の電気接続工事が別途必要です。お近くの設備業者様などへご相談ください。
- 防火区画=防火のために、防火壁、耐火構造の床・壁などにより、一定面積ごとに施した区画の事
- 主要構造部を耐火構造とした建築物、準耐火建築物
- 区画面積/床面積1,500㎡未満
- こだわりの設備
- 本体仕様
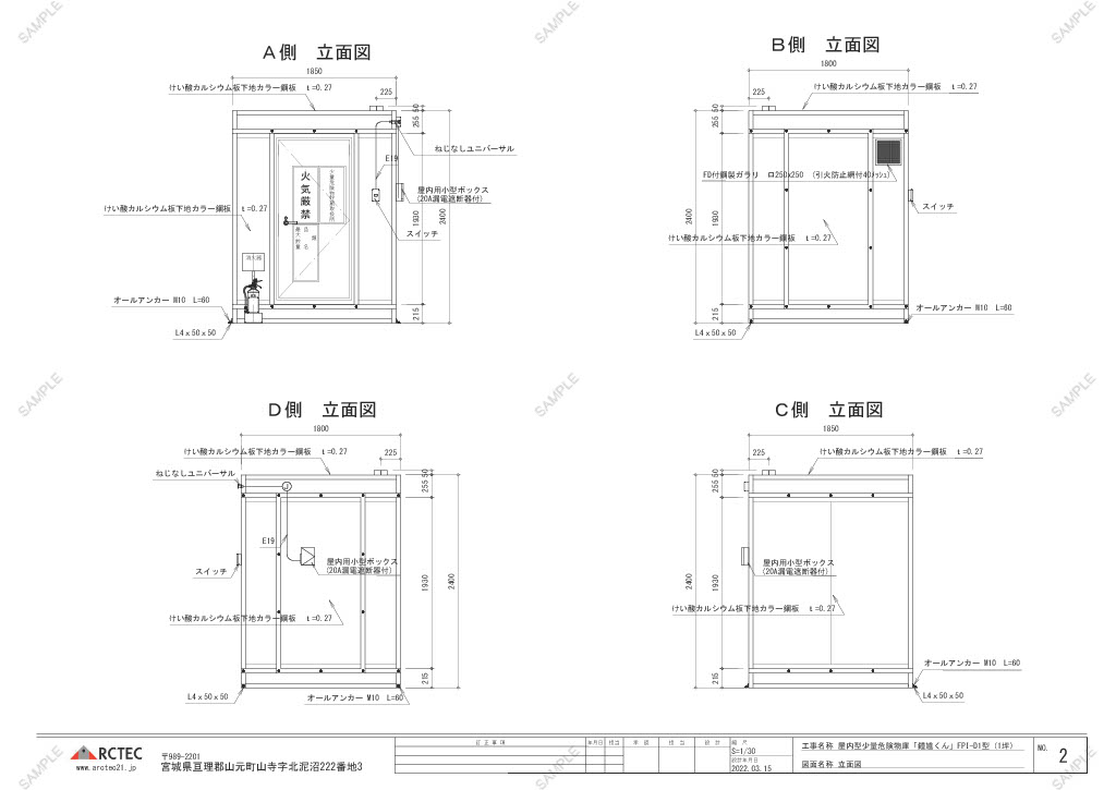
- 参考図面
FPI-D1型 - 参考図面
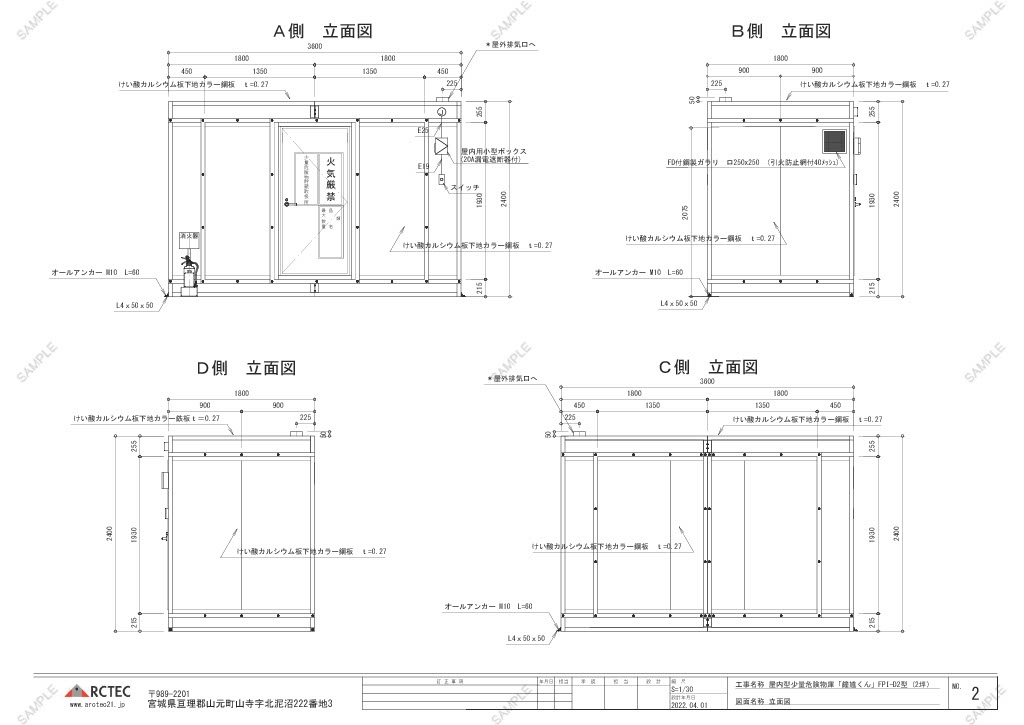
FPI-D2型 - 鋼製棚
危険物庫の部位の写真を掲載しています。図面から読み取れない各種仕様をご確認ください。
溜桝へ向かって1/100勾配
- 溜桝に向かって1/100の三次元的な勾配を設けることで、ピットを用いずに漏れ出た危険物を溜桝に集めます。
- ステンレス縞鋼板を使用している為、腐食に強く高耐久です。

SUS製溜枡
(H200×370×370)
- 一般的な鋼製より腐食に強い、SUS304鋼種のオリジナル溜桝を使用しています。
- 溶剤や水分等での腐食、穴あき等を防止し、危険物の漏出を防止します。

特定防火設備(ドアタイプ)
ドアは自閉式の特定防火設備となっています。

ブレーカーBOX内部
(100V20A)
危険物庫付属の設備(照明、ダクトファン)を稼働させるため、ブレーカーBOXに1次側電源接続を行う必要がございます(お客様手配)

FD付き鋼製ガラリ
(SUS引火防止網40メッシュ)
高耐久なステンレス製引火防止網付きの吸気用FD付きガラリです。

防火ダンパー
高耐久な亜鉛メッキダンパーを採用。腐食に強く長期間安定動作可能な製品です。

危険物庫内の照明設備
- 防爆形のLED照明が標準装備となっております。
- 明るく省電力で庫内での小分け作業時も安心です。

排気ダクト接続部
(150φ、立ち上げ50㎜)
庫外の可燃性気体を屋外に排気する為、排気ダクトの施工が必要となります。(危険物庫外お客様手配)

アンカー固定用L型金具
危険物庫をしっかりと固定する為、アンカー施工を行います。

| タイプ | 1坪 | 2坪 |
|---|---|---|
| 規格・品番 | FPI-D1型 | FPI-D2型 |
| 構造 | 軽量鉄骨造(高耐食めっき鋼材 ZAM) | |
| 建築面積(壁芯) | 1800×1750:3.15㎡ | 3550×1750:6.21㎡ |
| サイズ(外寸) | H2400×1850×1800 | H2400×3600×1800 |
| 自重 | 0.7トン | 1.3トン |
| 耐荷重 | 300kg/㎡ | |
| 屋根 | けい酸カルシウム板(t=6mm 不燃番号 NM-2710) カラー鉄板(t=0.27mm 不燃番号NM-8697)両面貼り複合板 |
|
| 外壁 | けい酸カルシウム板(t=6mm 不燃番号 NM-2710) カラー鉄板(t=0.27mm 不燃番号 NM-8697)両面貼り複合板 |
|
| 内壁 | 同上表し | |
| 天井 | 同上表し | |
| 床 | SUS304縞板t=3.0mm 溜桝に向かって1/100勾配 | |
| 建具 |
スチール製セミエアタイトドア(ドアクローザー、シリンダー錠付、自閉式) 平成12年建設省告示第1369号に定める特定防火設備 |
|
| 電気設備 | 防爆形直管LED照明器具 スチール製スイッチボックス・スチール製ブレーカーボックス(20A漏電ブレーカー付) |
|
| 換気設備 | ガラリ(FDS,SUS引火防止網付) ダクトφ150 FD有 耐圧防爆形中間ダクトファン(FULL装備) |
|
| 標準基礎 | あと施工アンカー固定が出来る床(コンクリートなど) | |
| 消防設備 | 消火器・消火器スタンド・標識(3枚セット)取付け含む | |
| 溜桝 | 鋼製溜桝(H200×370×370) | |
| その他の設備 | 建具はスチール製引戸(カームスライダー)へ変更可能 オプション 踏み段(めっき鋼材) |
|
| その他の部品 | 外装材用ビスは全てSUS製 | |
| オプション or 変更可能 |
個別換気、集中換気 対応可能 屋内型は組立式ですが、搬入、設置が可能と判断できましたら、弊社工場で組立を行った状態での納品も対応可能です。 既定寸法以外の特殊寸法での対応が可能な場合もございますのでご希望の際はご相談ください。 |
|
ボルトを1本も使用しない完全ボルトレス構造の鋼製棚です。
鋼製棚(段替えピッチは30㎜間隔です)

地震対策(本体と鋼製棚の固定)

地震対策(床固定専用ベースを用いて、床材へ溶接した全ネジボルトに固定)

地震対策(回転式の落下防止デバイザー)

















