危険物庫 FSAシリーズ屋外型
FSA-2型・FSA-3型
指定数量の倍数1倍以上10倍未満対応
商品説明
指定数量の倍数が1倍以上、10倍未満(貯蔵及び取り扱う危険物の合計)に対応。
特殊引火物、第一石油類、第二石油類、アルコール類の貯蔵が多い。
2坪、3坪の2タイプがあり、それぞれ危険物を貯蔵・取り扱う際に使用する容器(ガロン瓶、一斗缶、ペール缶、携行缶、ドラム缶等)により選ばれる傾向がある。
平成26年12月「危険物貯蔵庫の床構造体の製造方法」を取得。弊社、鉄筋コンクリート製床構造の製造方法が特許を取得いたしました。消防法適合タイプ。
- こだわりの設備
- 本体仕様
- 参考図面
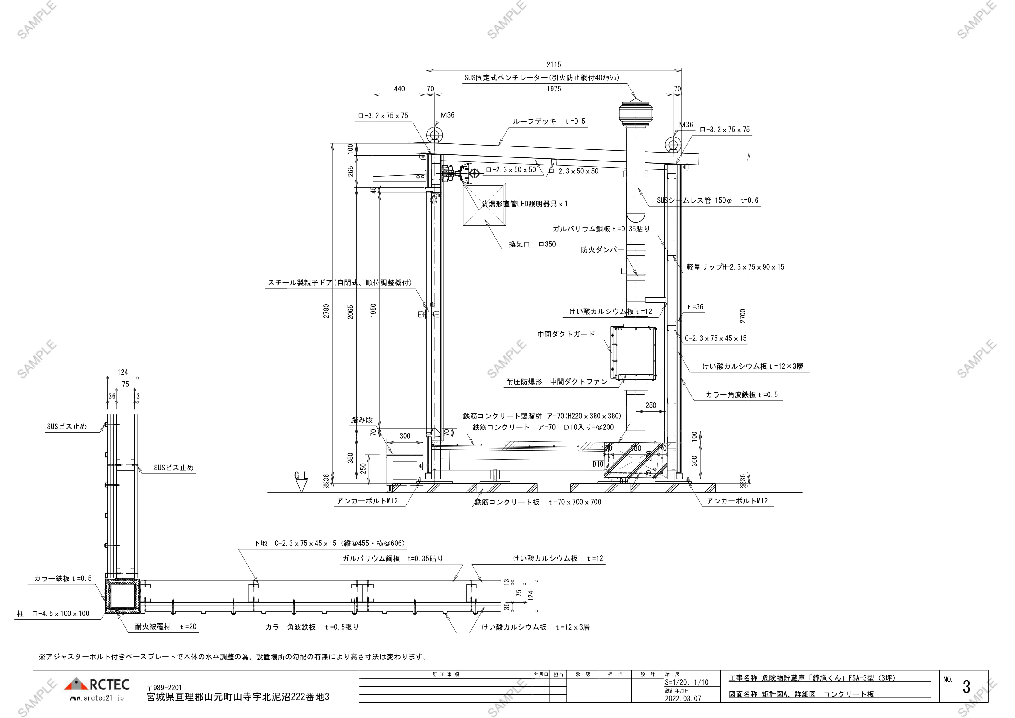
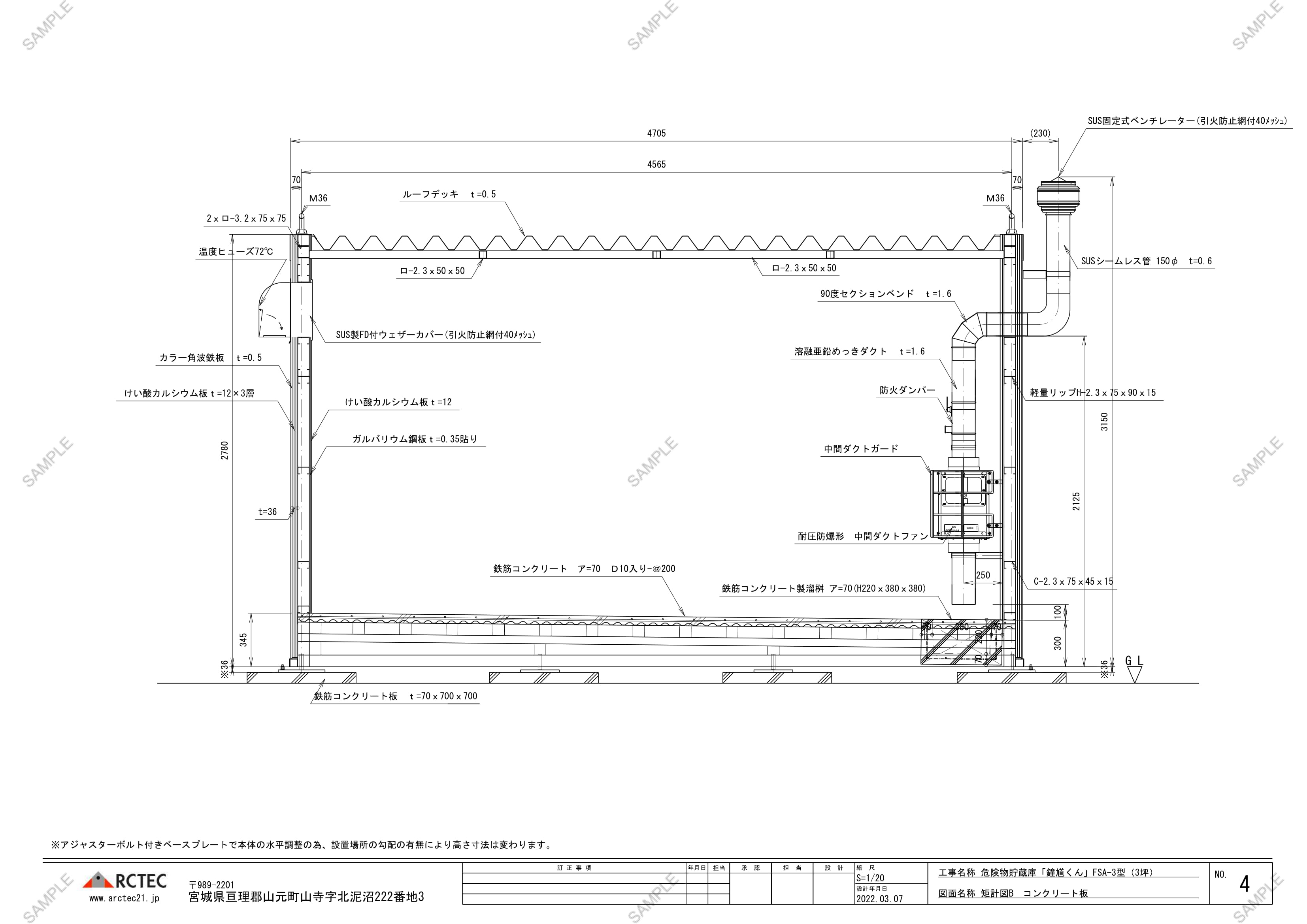
FSA-2型 - 参考図面
FSA-3型 - 鋼製棚
危険物庫の部位の写真を掲載しています。図面から読み取れない各種仕様をご確認ください。
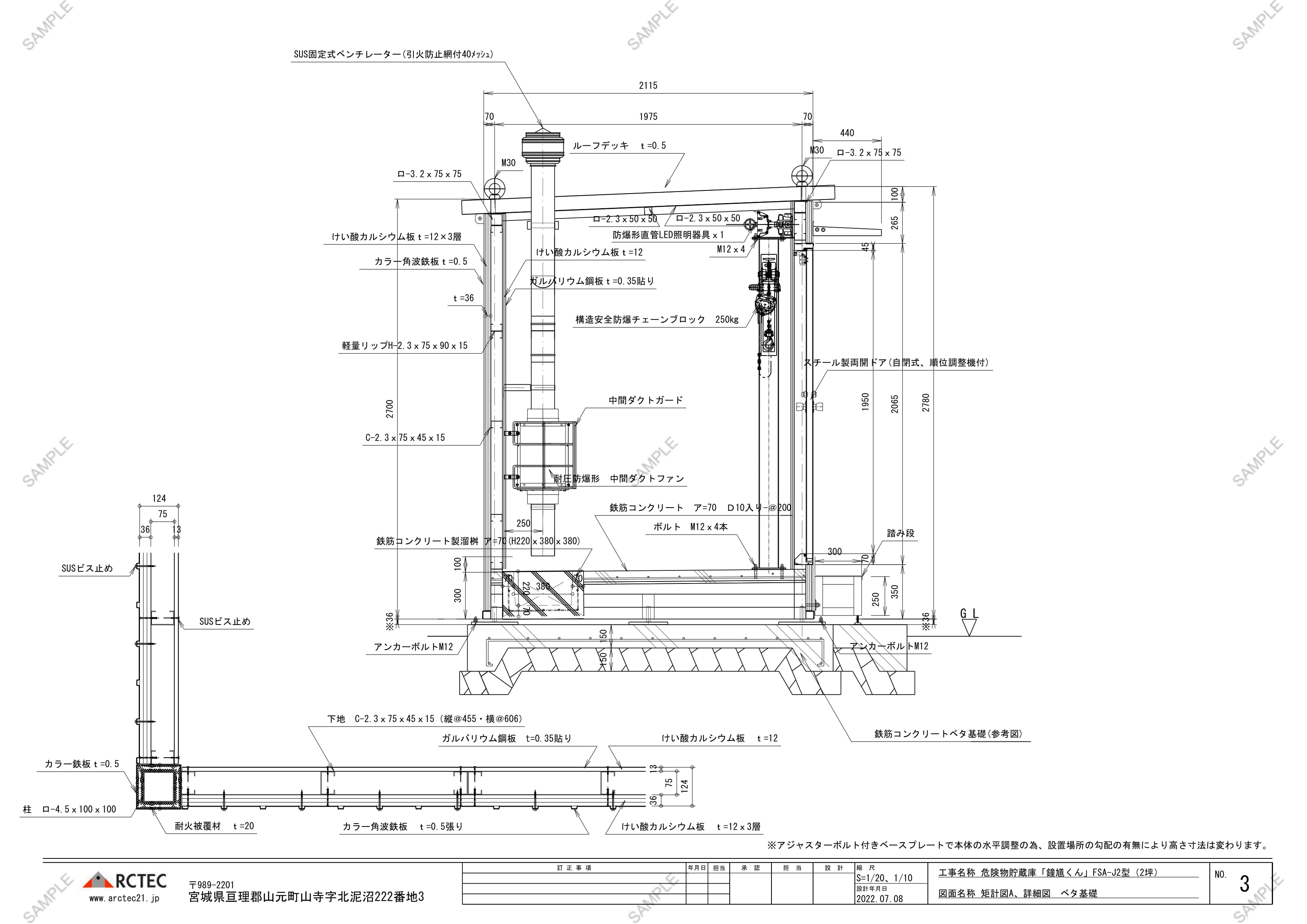
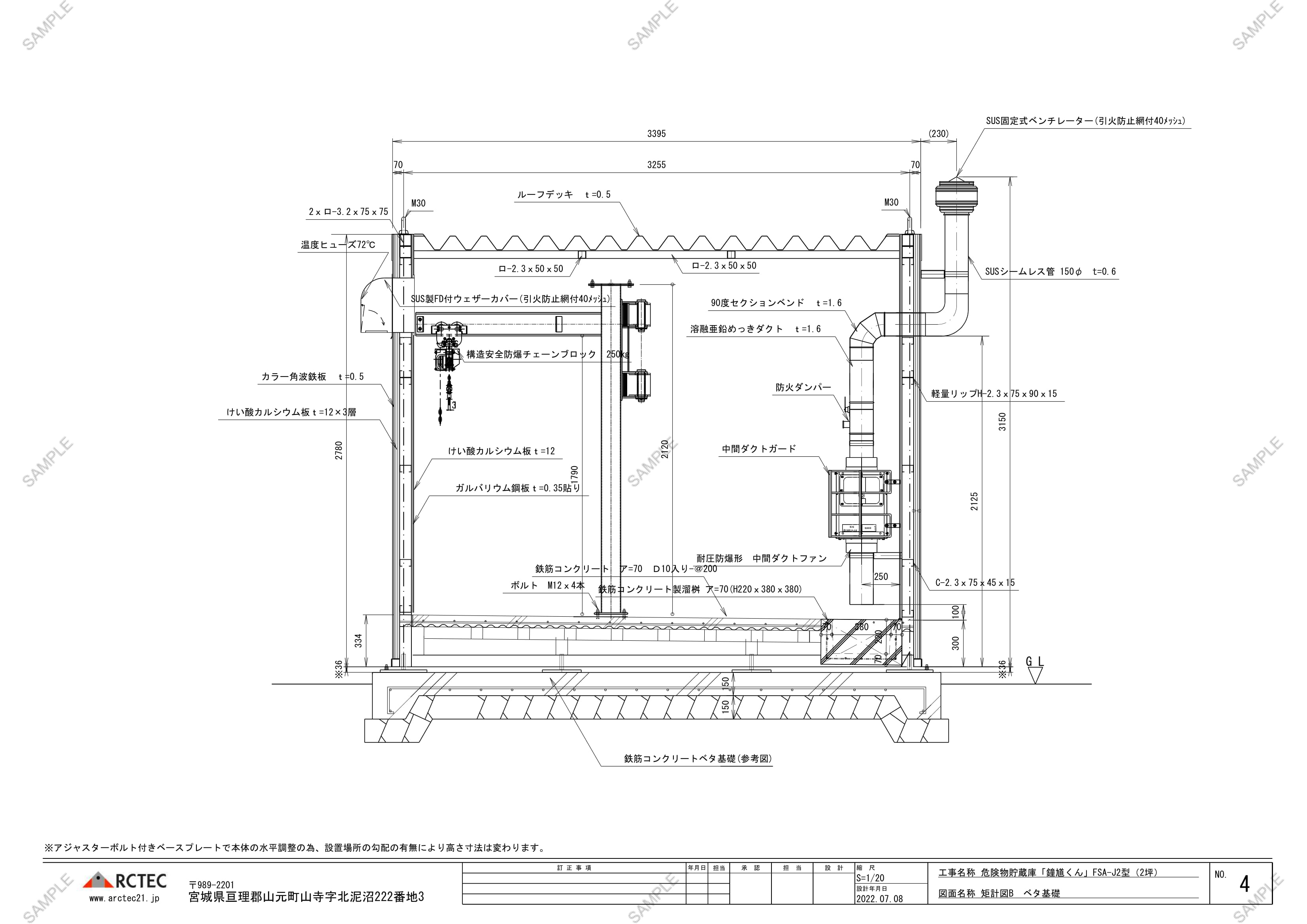
鉄筋コンクリート製の床構造(特許取得済)
- 溜桝に向かって1/100の三次元的な勾配を設けることで、ピットを用いずに漏れ出た危険物を溜桝に集めます。
- 重く低い重心設計のため、強風や地震の際にも転倒しない特徴があります。
- 縞鋼板では錆びやすく、地震時に危険物容器の滑りによる二次災害を考慮した結果、鉄筋コンクリートの床の設計・開発に成功。平成26年12月26日に特許取得。

鉄筋コンクリート製 耐火溜枡
(H220×380×380)
- 弊社オリジナルの鉄筋コンクリート製溜桝です。厚みを70mm確保しており、耐火構造となっております。
- 開口を広くとっており、溜まった危険物の汲み取りや清掃等、お手入れしやすい形状となっております。

特定防火設備の建具/防油堤機能のある沓摺
- ドアは自閉式を採用し、セミ・エアタイト仕様の為、高い気密性・水密性があり、危険物を災害等様々な要因から守ります。
- 危険物の漏洩を想定し、ドア下部にあるステンレス製の沓摺高さを50㎜程度設けることで、危険物庫外に漏出しないよう防油堤機能を持ち合わせています。

オリジナルのステンレス製庇
耐久性を意識してSUS430を採用し、仕上げに焼付塗装をしています。

ステンレス製ウェザーカバー/引火防止網付き
- 給気口の錆対策として、SUS304製のウェザーカバーに、モリブデンとニッケル含有量が多いSUS316製の引火防止網(40メッシュ)を採用しています。某原子力発電所への納品時、塩害対策としてSUS316のご要望をいただいて以来、弊社では標準仕様として採用しています。
- 72℃で作動する防火ダンパーが標準装備され、火災発生時には外部からの空気の流入を遮断します。

ベンチレーター(排気側)
40メッシュ内蔵のステンレス製固定式ベンチレーターを標準装備。風雨の進入を防ぐ堅牢な構造となっています。

防爆形中間ダクトファン(ダクトガード付属)
- ガルバリウム綱板製で、耐候性に優れています。
- アークテックオリジナルのダクトガードを取り付けることにより、ファン筐体の破損、危険物の容器等の破損を抑止し、事故発生の防止となります。

防火ダンパー
高耐久な亜鉛メッキダンパーを採用。腐食に強く長期間安定動作可能な製品です。

防爆LED照明設備
明るく省電力なLED照明を標準装備しています。庫内の照度が有る為、危険物の取り出しも安心して作業可能です。

ベースプレート(300×300)
アジャスター式のため、設置作業時に回転させてレベル調整を可能にしています。対角するプレート位置で50㎜程度の高低差まで対応可能です。
溶融亜鉛めっきを施し、錆の発生を抑止させ、危険物庫を足元から支えます。
打ち込み式アンカーはステンレス製を採用し、ジンクハット(亜鉛製の防錆カバー)が付属の為、固着や錆によるアンカーの破断を防止しています。

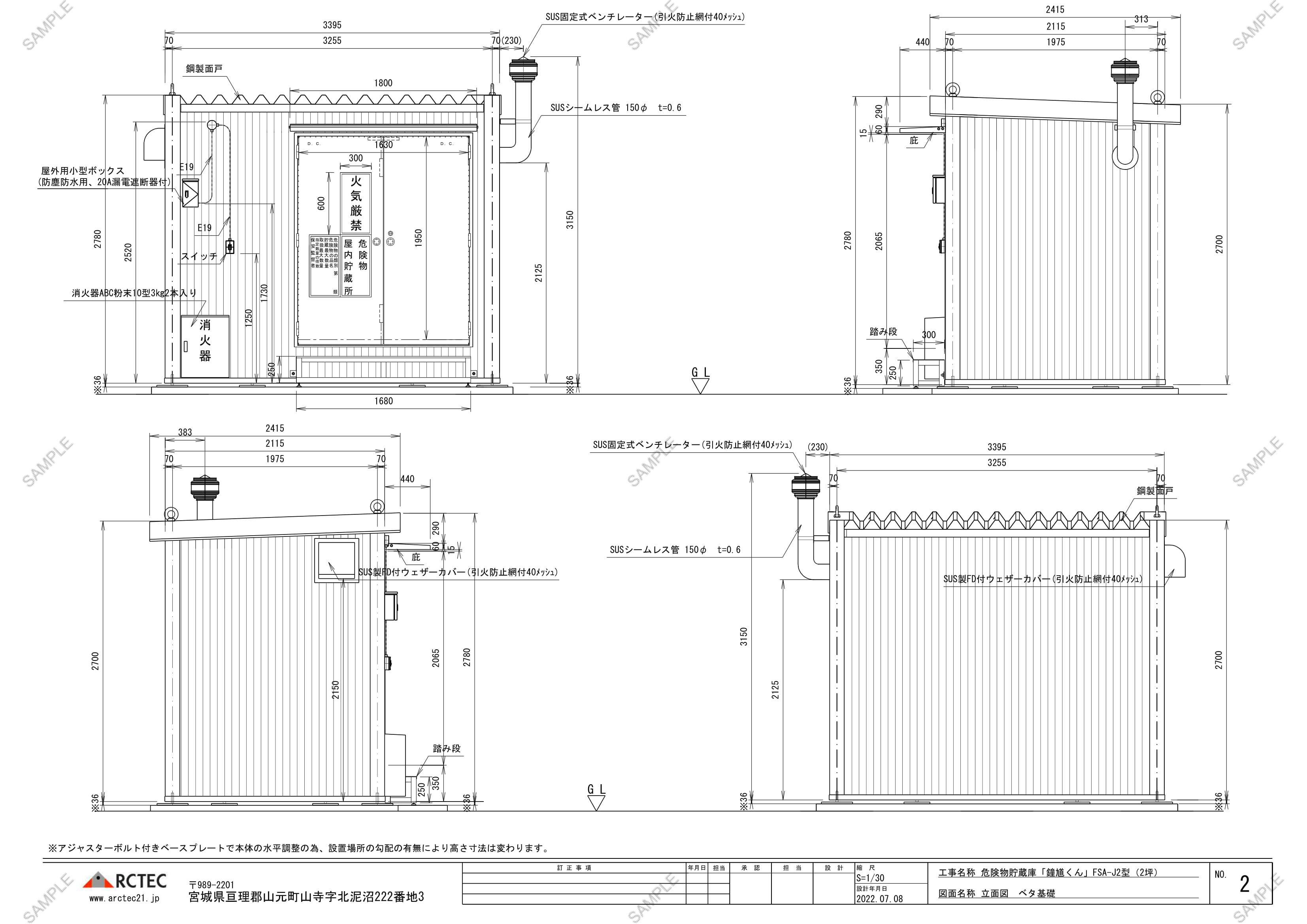
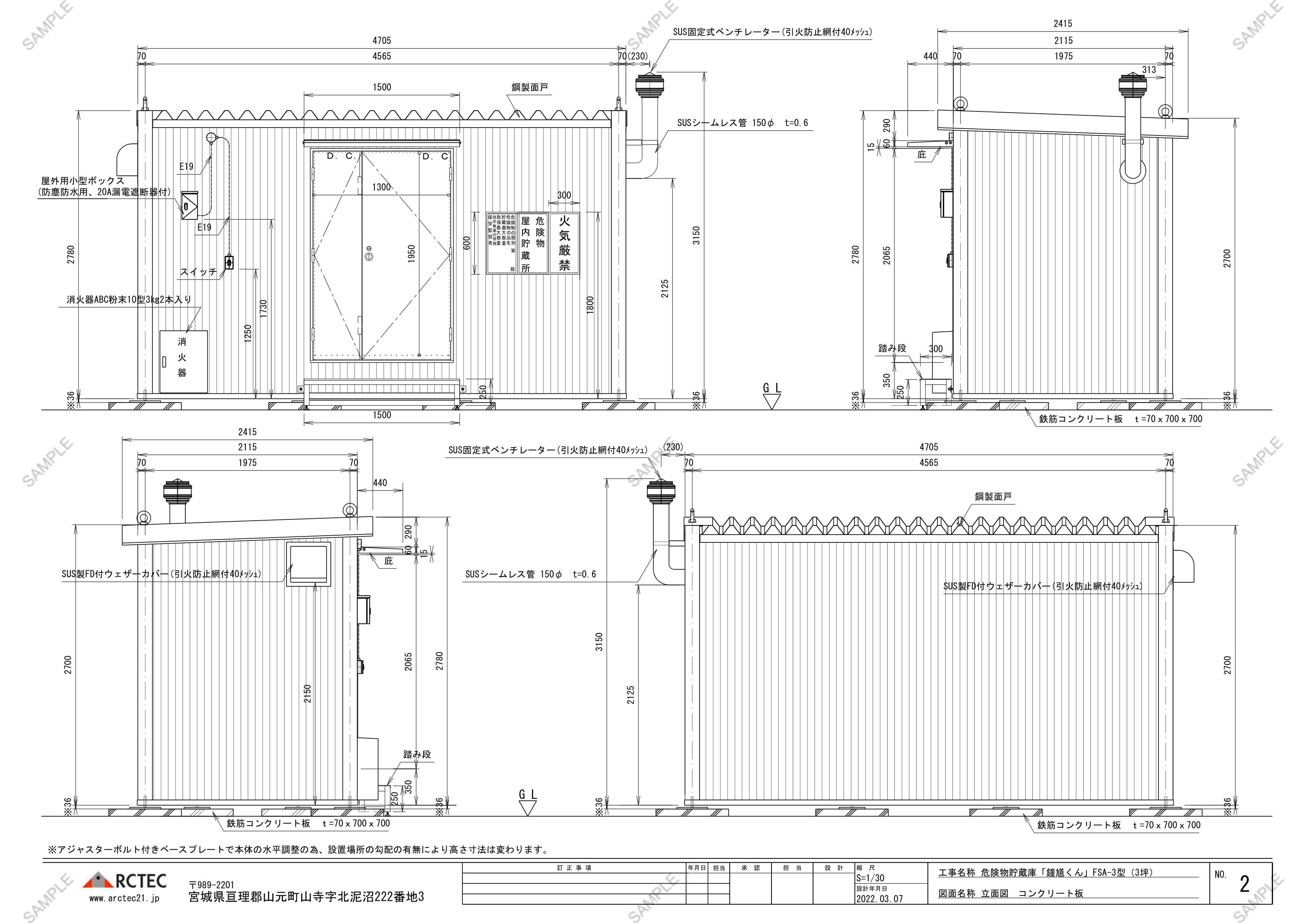
| タイプ | 2坪 | 3坪 |
|---|---|---|
| 規格・品番 | FSA-2型 | FSA-3型 |
| 構造 |
柱:角型鋼管(4.5×100×100) 間柱:リップH(2.3×75×90×15) (壁下地・カラーC型鋼2.3×75×45@450) 桁・梁・その他主要部:(高耐食性めっき鋼材t=3.2㎜)ZAM |
|
| 建築面積(壁芯) | 1975×3085:6.09㎡ | 1975×4565:9.02㎡ |
| サイズ(外寸) | H2780×W2115×L3225 | H2780×W2115×L4705 |
| 自重 | 3.3トン | 5.3トン |
| 耐荷重 | 800kg/㎡ | |
| 屋根 | ガルバリウム鋼鈑t=0.5 ルーフデッキH88(不燃認定NM-8697) | |
| 外壁 | けい酸カルシウム板t=12×3(不燃認定NM-2773)下地 カラー角波鉄鈑t=0.5(不燃認定NM8697) 平成12年建設省告示第1399号に定める耐火構造とする。(1時間耐火) |
|
| 内壁 | けい酸カルシウム板t=12(不燃認定NM-2710)下地 カラー鋼板t=0.35(ガルバリウム鋼鈑素地) |
|
| 天井 | ガルバリウム鋼鈑ルーフデッキ表し | |
| 床 | 鉄筋コンクリートt=70金鏝仕上(工場打設)耐火構造 ガルバーキーストンt=0.8下地 異形鉄筋D10@200入り 溜桝に向かって1/100勾配 平成12年建設省告示第1399号に定める耐火構造とする。(1時間耐火) |
|
| 建具 | スチール製セミエアタイトドア(ドアクローザー、シリンダー錠付、自閉式) 平成12年建設省告示第1369号に定める特定防火設備 |
|
| 電気設備 | 防爆形直管LED照明器具 スチール製スイッチボックス・スチール製ブレーカーボックス(20A漏電ブレーカー付) |
|
| 換気設備 | SUS製固定式ベンチレーター(SUS引火防止網付) SUS製FD付きウェザーカバー(SUS316引火防止網付) ダクトφ150 FD有 耐圧防爆形中間ダクトファン(FULL装備) |
|
| 標準基礎 | 70×700×700㎜の鉄筋コンクリート板とD24×L500の杭による基礎工事 | |
| 消防設備 | 消火器・消火器ボックス・標識(3枚セット)取付け含む | |
| 溜桝 | コンクリート製溜桝 ア=70 (内寸H220×380×380) | |
| その他の設備 | 踏み段(めっき鋼材)・庇(SUS材へ焼付塗装)・アジャスターボルト付きベースプレート(溶融亜鉛めっき) | |
| その他の部品 | 外装材用ビスは全てSUS製、ボルト類・プレート等は全て溶融亜鉛めっき品 | |
ボルトを1本も使用しない完全ボルトレス構造の鋼製棚です。
鋼製棚(段替えピッチは30mm間隔です)

地震対策(本体と鋼製棚の固定)

地震対策(床固定専用ベースを用いて、アンカーボルトにて床に固定)

地震対策(回転式の落下防止デバイザー)



















